Millhouse - Commencement on Site

Cotswold architect design listed extension west elevation

West Elevation - Design Visualisation

cotswold stroud architects listed stone building contemporary design

West View - Design Section Cut Visualisation

Works have started on site at Millhouse, a project to extend and renovate a Listed Cotswold stone mill building.

The new built elements will provide a new kitchen dining space with deep overhanging cantilevered eaves to provide sheltered outdoor space adjacent to the river running through the garden. This overhang provides both shade and shelter during adverse weather and facilitates al fresco dinging during warmer months.

Rows of elegant tall windows are framed by beautiful timber fins which extend up to the ceiling, inside and out. A deep window sill also provides opportunity for in-built perch seating.

Accompanying photos and visualisation imagery provide a glimpse into the design process and current works on site. The CGI imagery shows a view of the western elevation and the same view as a ‘section cut’, allowing a view of the activities in

Cotswold property architect extension contemporary construction

Site Progress Photo

Edgeworth House - Planning Permission Granted

SOUTH & WEST ELEVATIONS WITH MATERIAL EXAMPLE SWATCHES

We’re delighted to have achieved planning permission for Edgeworth House. The property will create a new family home complete with outbuildings and multigenerational living areas for family members.

Built on the site of an existing property, the design utilises the existing structure where possible, over-cladding with external wall insulation and new facade materials. Newly built living spaces and roof forms create an entirely new architectural approach to the property which sits on a visually prominent hillside site, at the edge of the beautiful historic village of Edgeworth.

Edgeworth village has a distinctive architectural style of traditional Cotswold stone vernacular buildings with elegant sharp gables, chamfered stone window frames and bold gutter details. The new design will create a home which complements the local style, whilst incorporating crisp contemporary detailing to create a new multi-generational home fit for 21stC living.

We are very excited to see how this project can set an example for high quality contemporary interpretations of a traditional vernacular.

GROUND FLOOR PLAN

FIRST FLOOR PLAN

Nodlings House - Works Started on Site and New Visualisation Imagery

Works have begun on site for our project, Nodlings House, which recently gained planning permission after a lengthy and successful engagement process with the local authority. The proposal creates a series of sensitive new build elements adjoining a historic stone cottage, which will be retrofitted internally for vastly improved insulation and building performance.

The contemporary forms take reference from the original cottage volume in design and materiality. Opportunities are also taken for new double height spaces, glazed links to draw light deep into the floorplans and large sliding openings to connect internal living spaces to the landscape beyond. The old building had turned its back on the impressive views and southern light - this new scheme now allows all living and bedroom spaces to face south and fully appreciate the opportunities of the site and its spectacular setting. Circulation spaces have been moved to the rear North side, allowing open plan living and dining spaces to flow into the garden with al fresco dining.

We have also recently been experimenting with a new visualisation software to represent our 3D CAD models. Taking a soft, impressionist approach to the 3D view allows a simple interpretation of the proposal at planning stages; this conveys the scale, materiality and atmosphere of the new dwelling in its Autumnal landscape setting to help understand the design proposals alongside the CAD drawing packages.

Quarry Cottage - Award Winning News!

 

Quarry House, Chalford, recently won Gold in the National Building and Construction Awards 2025, in the category of Best Contractor up to £5M.

Eleven Builders completed the technically challenging construction project with great efficiency and an exceptional attention to detail. The build required a highly coordinated approach, bringing a range of materials together to create a crisply detailed, elegant and contemporary project.

Works included an extension and internal renovations to a traditional Cotswold cottage. The project added a new entrance hallway and feature staircase with curved glass balustrade and a suspended landing. Natural zinc is formed around a unique curved structure at ground level, with elegant radially placed windows at first floor, all topped with a zinc clad conical roof. Internally the extension creates a double height atrium to the stairs, which is delicately suspended from the roof.

Please see our project page for more photographs and read about it in the local press.

Planning Permission Granted - Nodlings House

 

We are delighted to have received planning permission for Nodlings, a four bedroom property with connected ancillary and garage volumes in Stroud.

The proposals work with an existing historic stone cottage in the landscape, adding new gabled volumes around it to create a new contemporary family property.

Energy conservation and generation is a key principle in the project, creating a highly insulated new home with solar panels on all south facing rooves. Cotswold stone and zinc metal cladding roots the building to its rural industrial context, complementing the original stone cottage and barns whilst providing crisp contemporary interpretions with the new volumes. These are separated from historic stone volumes with elegant glazed links and zinc detailing. This also allows light to flood deep into the floorplans, illuminating stairwells and double height spaces above the kitchen for example.

The original cottage volume will also be retrofitted with internal wall insulation to provide a property which retains its historic charm whilst serving as a warm, comfortable home fit for 21stC living. Scale models and 3D studies served as a key tool for conveying the design throughout the planning process. It required careful and extensive consultation with the local authority to achieve permission for a design which satisfies all requirements of the brief and local policy.

Approaching Completion - Kingston House

Works are approaching completion on Kingston House in Leonard Stanley near Stroud, providing a new-build contemporary single storey home for our client.

Natural Cotswold stone combines combines with Larch timber cladding and a roughcast textured stone render to provide a beautiful new multi generational home. Large vaulted spaces are created inside to provide a spacious and daylight filled home. Two opening central rooflights bring daylight into the centre of the kitchen / dining space, while also helping to ventilate the property.

Solar panels provide electricity to the house, while also heating hot water and charging the car. This combines with an Air Source Heat Pump which connects to the underfloor heating throughout the property. Highly insulated throughout, Kingston House will provide a comfortable and exciting new home for our client.

contemporary new build eco house in the cotswolds by stroud architects
contemporary new build eco house with stone and timber in the cotswolds by stroud architects, gransmore architects

Progress on Site - Downs Cottages

Works are progressing on the renovation of 4 Downs Cottages, a three storey traditional Cotswold cottage in Frampton Mansell, near Cirencester and Stroud.

The remodel will renovate the property throughout, including a new open plan kitchen / dining space, together with a living room, two bedrooms, bathroom, cloakroom and utility. A new traditional dormer will provide much needed daylight to the bedrooms, accompanied by a Conservation style rooflight. The works will restore the former worker's cottage to provide a comfortable new family home.

Planning Permission Granted - France Cottage, Chalford

Planning permission has been granted for an extension to a Grade-II Listed traditional Cotswold cottage in the Chalford Conservation Area, Stroud.

Pre-Application consultation with the Local Authority Conservation Officer helped to develop the design of the extension, carefully positioned to the rear of the house and largely screened from view.

The new extension will add essential living space to the cottage, to support multi generational living, providing two new bedrooms and an ensuite. Timber cladding and a natural zinc roof contrast the original stone of the cottage. As natural materials they will weather and soften in appearance to complement the Cotswold stone of the cottage. A feature bay window also provides an elevated view across the Golden Valley to the south. Solar panels are concealed within the valley of the property, providing electricity to the cottage.

Extension to cotswold stone cottage by stroud architect

Progress on Site - Heath Cottage, Amberley

Works are progressing on site with the full remodel of Heath Cottage in Amberley, Stroud. The original Cotswold cottage is restored and extended to create a double gabled Cotswold property.

A feature zinc roof covers the single storey extension, which has a trapezoidal roof with an accompanying rooflight to bring natural daylight into the new kitchen / dining space. The two Cotswold stone gables are joined by a glazed link which creates the corridor at first floor. Hidden on the flat roof another rooflight draws daylight deep into the centre of the property. 

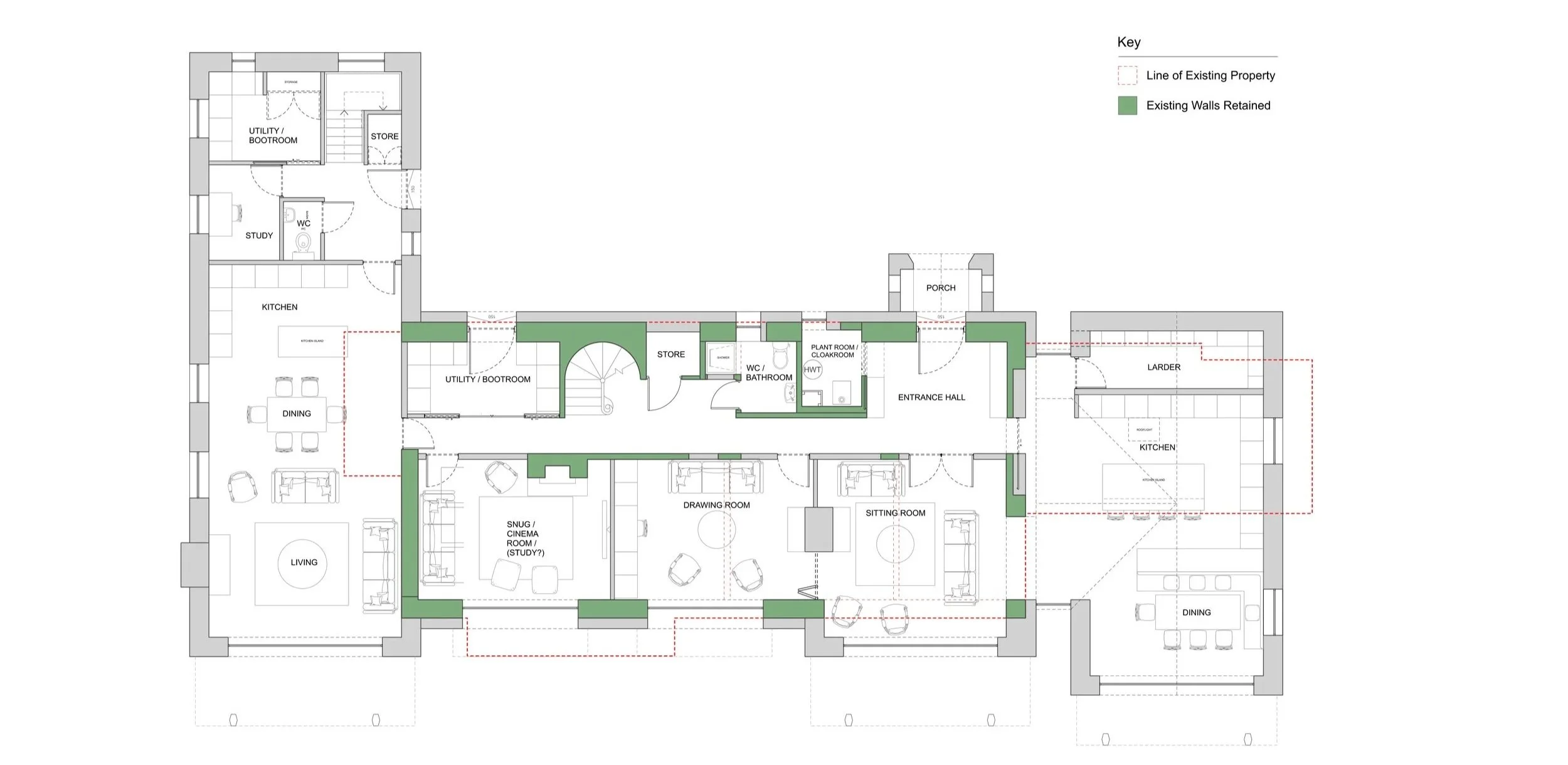
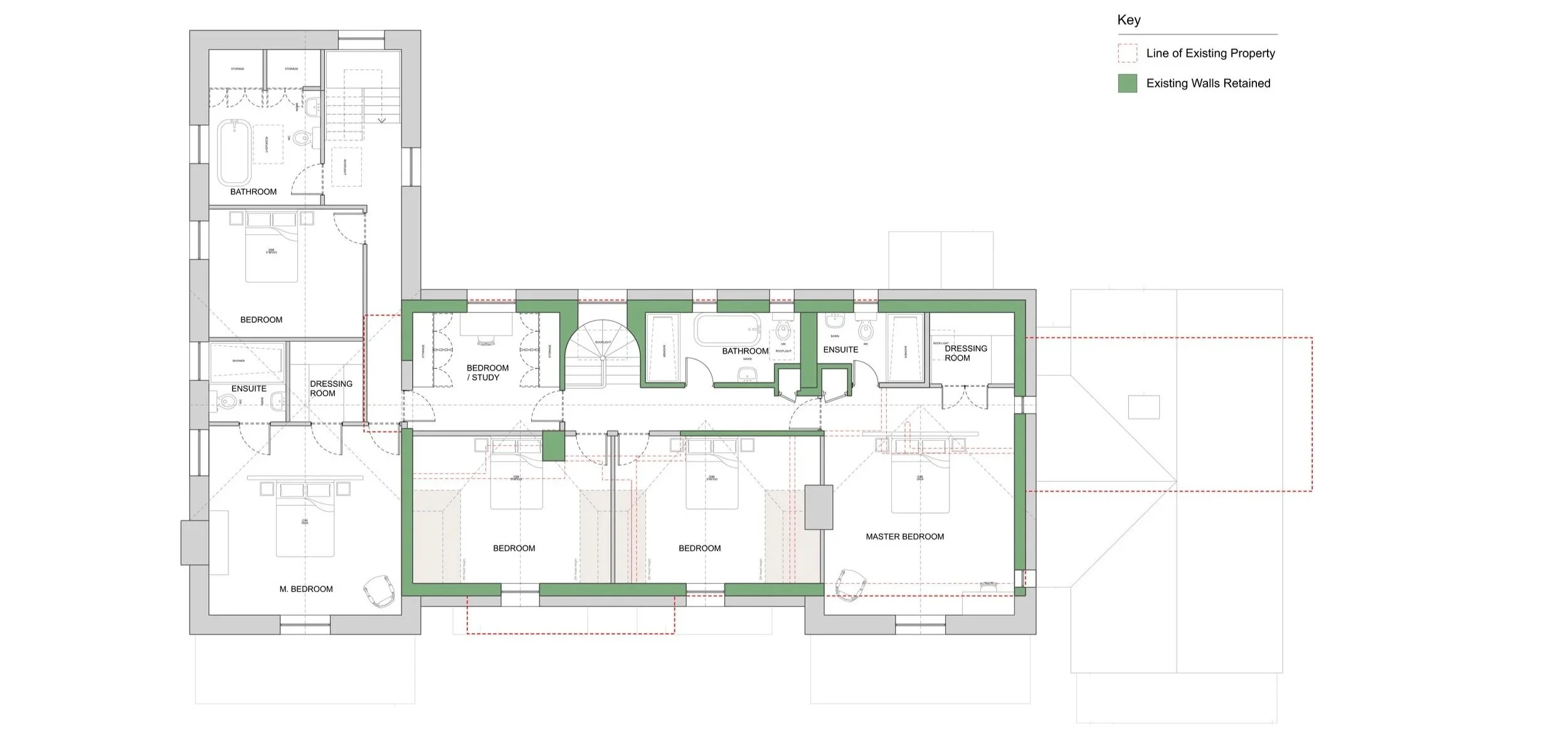
Planning Permission Granted - Dorval House, Sapperton, Cirencester

Planning Permission has been granted for a substantial extension to Dorval House, Sapperton, near Cirencester, to provide a stunning new gallery and entrance hall. The design also includes carefully considered alterations to the existing property to provide a new utility, larder and cloakroom, together with a feature glazed corner to enjoy the picturesque views across the Golden Valley.

Dorval House is set within a secluded and stunning location to the north of Sapperton. The new extension combines natural Cotswold stone and slates, a feature bay window, and natural metal seamed roof to provide a double height living space with ridge rooflights adding daylight from above. The design is carefully formed to the rear of the property preserving the balance and proportions of the original house which dates from 1818. The extension is sympathetic to the original house while also offering a new and different type of living space which connects to the surrounding natural landscape. In this way our design sensitivity balances old and new, providing a living space filled with natural daylight to complement the more cosy and intimate spaces within the original house.

Planning Permission Granted - Pen House, Box

Planning permission has been granted to provide a new feature single storey storey extension to a traditional Cotswold cottage within the Box Conservation Area, which borders Minchinhampton Common.

The extension will replace an existing conservatory and provide a modern interpretation of a Cotswold Orangery. A glazed corner opens the new garden room to the southern views across Nailsworth. Stone and timber combine with a green roof to provide a design which is sympathetic to the original house.

A number of internal alterations improve the flow through to the house, connecting the property with the garden and the views beyond.